HOME お勧め工事 リフォームの流れ リフォーム案内 施工事例 会社案内 お問合せ
 
施工事例の目次 増改築の目次


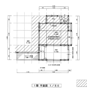
佐倉市 Y様邸

洋間を増設


6帖和室に3.2帖の洋間を増床しました。
既存部分


     
     
     

         
 工事経過   増築部分 一間のクロゼットを設けて収納力UPです。   


 
 
 
 
ページのはじめ